Élégante villa moderne avec piscine et jardin à Valldoreix
REF.2686 Sant Cugat del Vallès
Contact avec l'agence
TÉLÉCHARGER LE DÉTAIL PDF
Prix de vente

2.500.000 €

Description

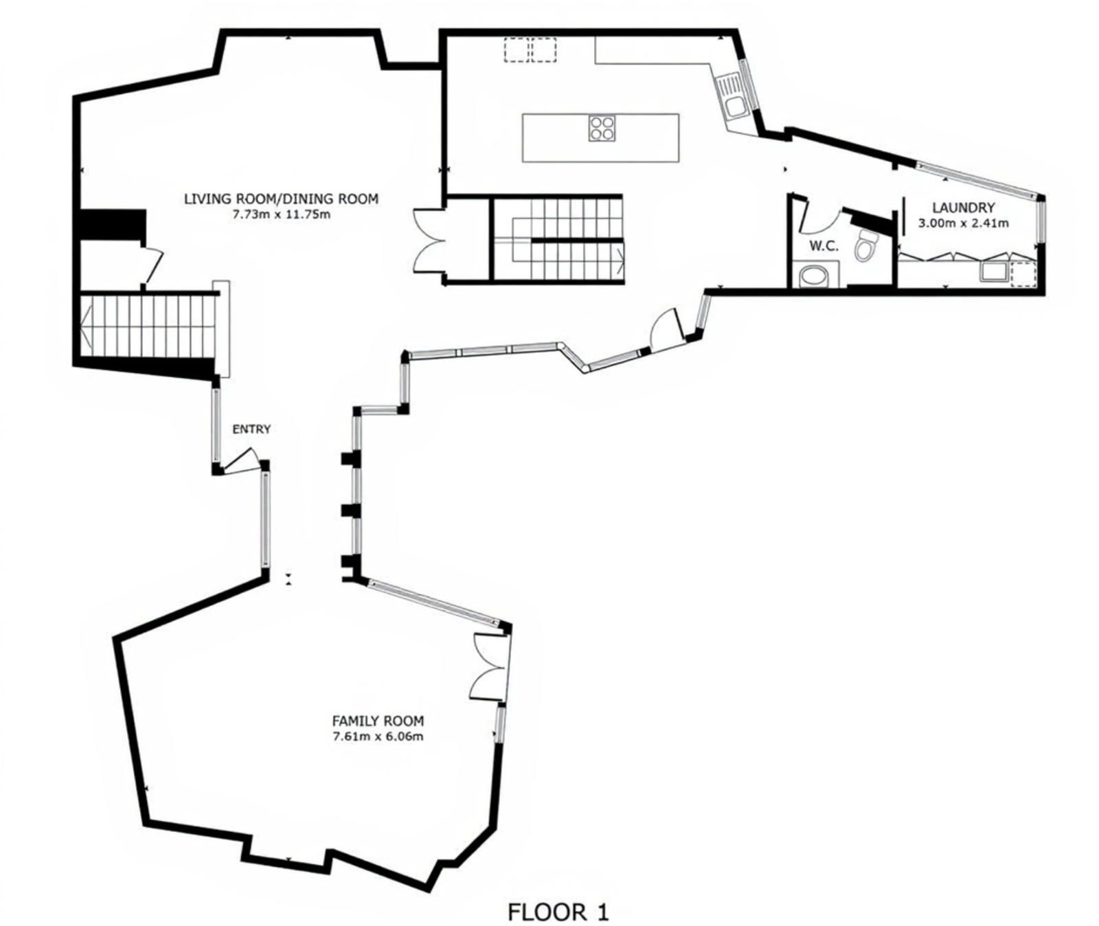
Il y a des maisons que l’on comprend en regardant les plans.

Et il y en a d’autres que l’on comprend en s’imaginant un dimanche matin, pieds nus, les portes ouvertes sur le jardin.


Celle-ci en fait partie.


Située dans un quartier résidentiel calme de Valldoreix, entourée de nature et à proximité du club de tennis, cette villa individuelle allie design contemporain, confort au quotidien et une manière de vivre plus consciente et efficace.


La maison s’organise en forme de U, s’ouvrant sur le jardin. Toute la zone de jour se développe sur un seul niveau, entourée de grandes baies vitrées qui apportent une belle luminosité naturelle et créent une connexion fluide entre l’intérieur et l’extérieur. Ici, chaque espace a sa raison d’être.


Le salon-salle à manger, réparti en deux ambiances, et la cuisine ouverte avec espace repas donnent directement sur le porche et la piscine. Le porche vitré et climatisé permet de profiter de l’extérieur toute l’année, été comme hiver.


Le jardin est conçu pour le plaisir : piscine d’eau salée chauffée, espace barbecue, abri à bois et toilettes extérieures. Des détails pratiques qui améliorent réellement le quotidien.


À l’étage se trouve la zone nuit. Deux bureaux — dont un avec salle de bain complète — offrent des espaces idéaux pour le télétravail. La suite parentale dispose d’une terrasse privée avec vue sur la piscine et l’environnement naturel de Collserola. De l’autre côté, deux chambres doubles et une suite supplémentaire complètent une distribution confortable et harmonieuse.


La maison est équipée de panneaux solaires avec système de batteries, permettant une consommation électrique quasi nulle. Elle bénéficie également du chauffage par le sol, de la climatisation, de l’énergie solaire pour l’eau chaude sanitaire, le chauffage et la piscine, d’une cheminée, d’un système d’osmose et d’une piscine d’eau salée chauffée.


Du confort, bien sûr.

Mais aussi de la sérénité.


Le niveau inférieur comprend un garage pour quatre véhicules, une salle des machines et un espace de rangement.


Il ne s’agit pas seulement de surface.

Il s’agit de la façon dont vous souhaitez y vivre.

Caractéristiques

Type Chalets Independientes
Ville Sant Cugat del Vallès
Construit 607 m2
Utile 405 m2
Terrain 1.152 m2
Chambres 6
Salles de bain 4
Meublé
Cuisine Meublée
Chauffage
Garages 4
Menuiserie extérieure
Menuiserie Intérieure
État
Type de sol
Ascenseur
Air conditionné
Piscine privée
Classification énergétique (D) Montrer
Électricité
Eau
Alarme intérieure
Alarme périmétrique
Digicod
Accès handicapés

Classification énergétique

Équipement

 Mètres construits 607 m2
 Chambres 6
 Salles de bain 4
 Garage 4

Emplacement

L'adresse de la propriété est approximative.
Corredor Mató Whatsapp Business

Corredor Mató Whatsapp Business

CONNECT
TAMARIU

C. Riera 6
17212 Tamariu · Girona
T. +34 972 62 00 16

LLAFRANC

C. Francesc de Blanes 42
17211 Llafranc · Girona
T. +34 972 61 15 26

BARCELONA

C. Calàbria 173 4º-3ª
08015 Barcelona · Barcelonès
T. +34 93 217 41 28

Corredor Mató · Top Cala SL ® 2021 · Developed by net2rent - Vacation Rental Solutions